Haus Irene

Unser Haus Irene

Wohnbereich mit Kueche im Haus Irene

Haus Irene ist unser Neubau im Rosenfelder Ring. Er ist entstanden aus einer ganz einfachen Beobachtung: Der Bedarf an bezahlbarem, gut zugänglichem Wohnraum für ältere Menschen ist groß, aber passende Angebote sind selten. Wir wollten deshalb einen Ort schaffen, an dem man nicht „untergebracht“ wird, sondern wirklich wohnen kann: mit einer eigenen Tür, einem eigenen Rhythmus und dem Gefühl, zu Hause zu sein – und das zu Mietkonditionen, die die Lebensrealität vieler älterer Menschen im Blick haben.

Gebäude und Alltag

Das Gebäude wurde 2023 fertiggestellt und ist vollständig barrierefrei konzipiert. In Haus Irene gibt es 67 1-Zimmer-Appartements. Ein Aufzug erschließt das 1. und 2. Obergeschoss. Die hellen, freundlich gestalteten Flure tragen dazu bei, dass sich das Haus nicht nach „Einrichtung“ anfühlt, sondern nach einem ruhigen, modernen Zuhause.

Flur und Eingang im Haus Irene

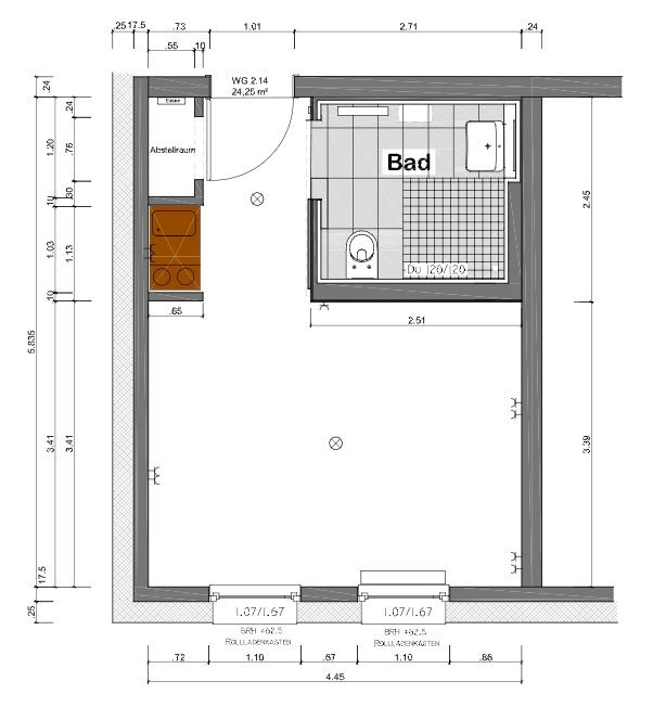
Wohnungen und Ausstattung

Die Wohnungen sind jeweils 25 m² groß und so geplant, dass sie im Alltag entlasten – ohne dabei unpersönlich zu wirken. Jede Wohnung verfügt über ein Bad mit Dusche, Stauraum, Handtuchheizung und mehreren Haltegriffen für mehr Sicherheit. Zusätzlich gibt es einen kleinen Abstellraum sowie eine Pantryküche mit Spüle, Kühlschrank, Kochfeld und Hängeschrank – ideal, um sich im Alltag unkompliziert selbst zu versorgen. Eine automatische Be- und Entlüftung unterstützt ein angenehmes Raumklima.

Die Appartements werden unmöbliert vermietet. Das ist uns wichtig, weil ein Zuhause nicht aus Standardmöbeln entsteht, sondern aus den eigenen Dingen: dem vertrauten Sessel, den Bildern, den Büchern und den kleinen Routinen, die den Tag vertraut machen. Die Wohnungen bieten dafür ausreichend Platz – damit Ankommen nicht nur organisatorisch klappt, sondern sich auch so anfühlt.

Wohnbereich mit Fenster im Haus Irene
Grundriss Haus Irene
Bad im Haus Irene
Bad mit Dusche im Haus Irene Wohnbereich mit Stauraum im Haus Irene Wohnbereich im Haus Irene

Lage und Wege

Auch die Lage macht vieles leichter: Haus Irene liegt ruhig im Grünen und gleichzeitig so, dass Wege im Alltag kurz bleiben.

  • Apotheken, Arztpraxen, Friseur, Post, Blumenladen und ein EDEKA befinden sich in etwa 600 m Entfernung.
    Ärzte, Apotheke und Friseur kommen regelmäßig ins Haus.
  • Netto liegt ca. 500 m entfernt, Lidl ca. 750 m.
  • Der S- und U-Bahnhof Lichtenberg ist ca. 1.000 m entfernt, die U-Bahnstation Friedrichsfelde ca. 800 m.
  • Der S-Bahnhof Friedrichsfelde Ost sowie die Straßenbahn sind in ca. 700 m erreichbar.